
Virtual Tour of the 2020 PNE Prize Home is available now!
Step Inside the 2019 Prize Home
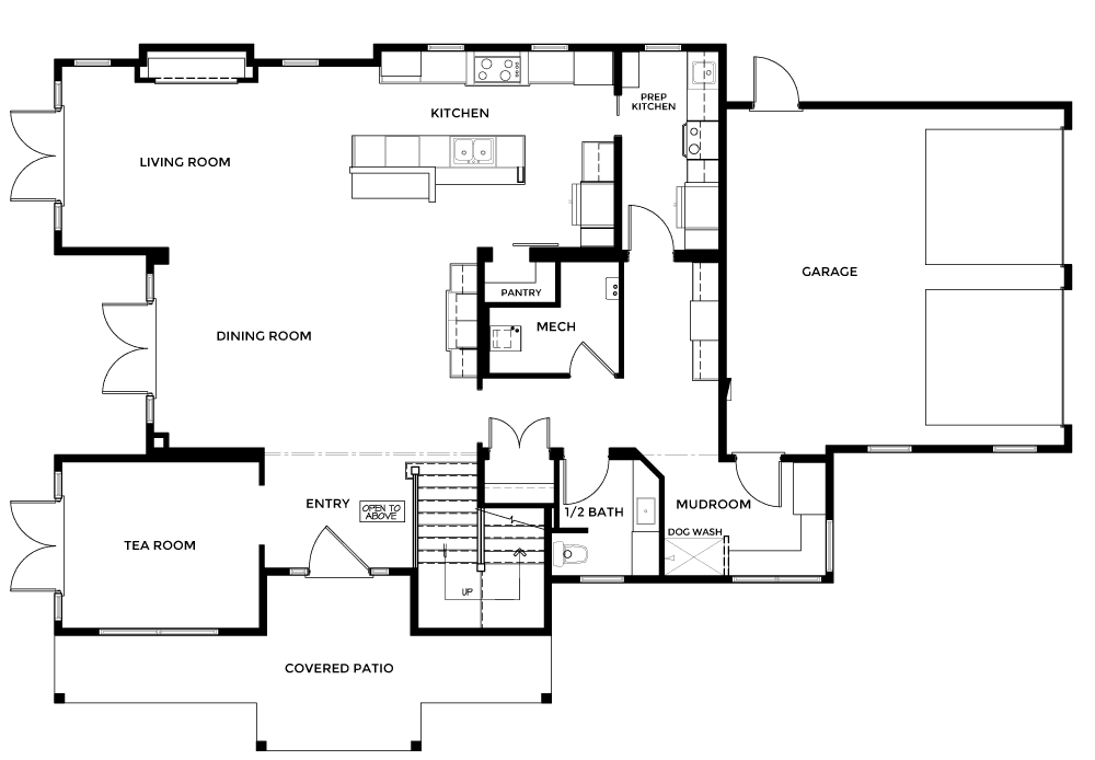
- LOWER FLOOR
- UPPER FLOOR



ABOUT
Settle into Kirschner Mountain, located in the heart of Okanagan wine country. You’ll soon discover that this hidden gem is where everyday moments are breathtaking.
With spectacular vistas, net zero ready infrastructure, gorgeous neighbourhoods, and a luxury home elevator, the 2019 PNE Prize Home is one of our finest Premier Series projects.
READY TO DESIGN YOUR CUSTOM HOME? REQUEST A CONSULTATION